Menu
Sluiten
contacteer ons info@horse-immo.be contacteer ons 053 60 65 66

BERINGEN - Imposante woning met handelsruimte op +/-30a

google maps 3581 Beverlo

€ 599.000

Aantal slaapkamers 3
Aantal badkamers 3
Oppervlakte 400 m²
Oppervlakte 3028 m²
scroll down

Omschrijving

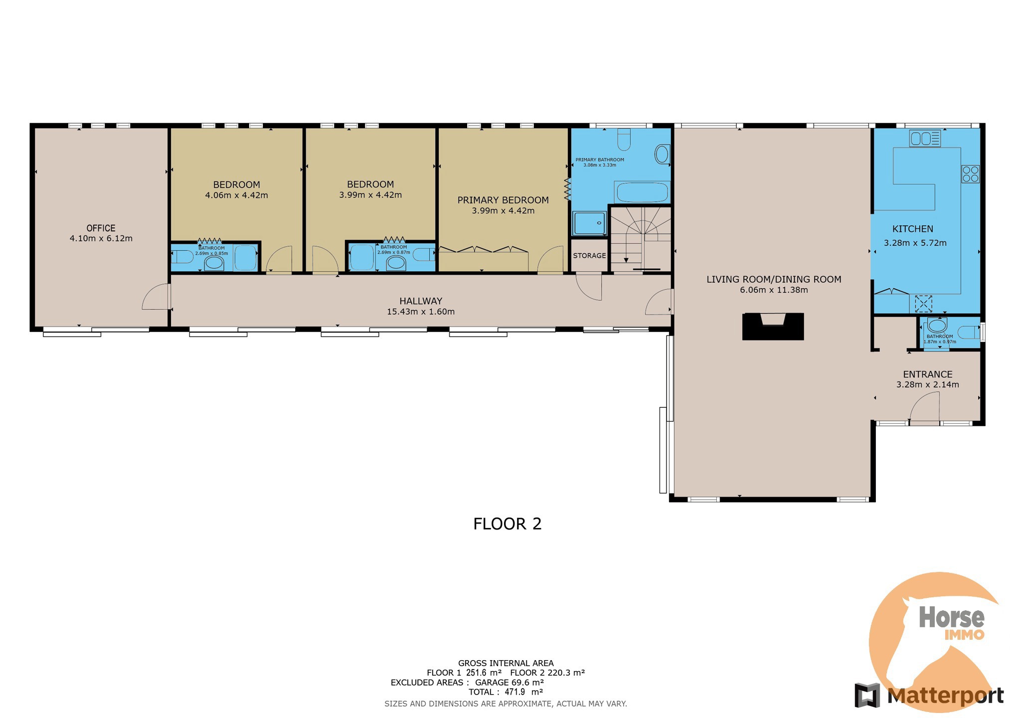
BERINGEN - Deze ruime woning is gelegen in het mooie Beringen en biedt maar liefst 400 m² aan leef - en werkruimte. De eerste verdieping herbergt een gezellig woongedeelte met 3 slaapkamers (waarvan 1 met eigen badkamer en de andere 2 met douchekamer en toilet), kantoorruimte, een grote leefruimte met eetgedeelte en keuken en een ruim terras met prachtig zicht over het perceel.
De woning vraagt wat opfrissing, maar dit betekent ook veel potentieel om de woning helemaal naar eigen wens in te richten!

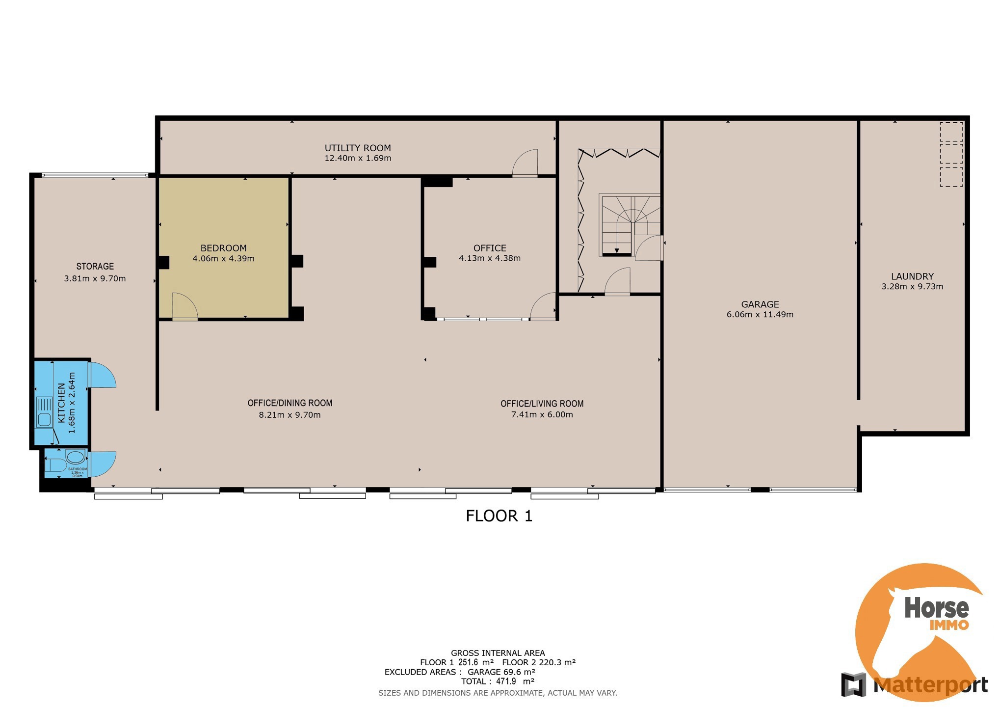
Het gelijkvloers is flexibel inzetbaar en kan eventueel perfect dienen als toonzaal, praktijkruimte, opslagruimte… de mogelijkheden zijn eindeloos. Dit heeft een oppervlakte van 250 m2 en omvat ook een garage van maar liefst 70m2.
Buiten bevindt zich momenteel een oprijlaan, maar met een perceelgrootte van ruim 30 are is er ruimte genoeg om een schitterende tuin aan te leggen en nog parkeerruimte te voorzien.
Dit perceel is ook gelegen in woongebied met landelijk karakter en heeft voldoende straatbreedte om eventueel verkaveld te worden tot extra bouwplaats(en) naast de bestaande woning, veel potentieel dus!

Interesse? Contacteer ons voor een bezoek op 053/60 65 66 en ontdek de mogelijkheden van deze unieke woning!

Virtuele rondleiding

Details van het pand

Details

Referentie
7236693
Grondoppervlakte
3.028 m²
Bewoonbare oppervlakte
400 m²
Gevelbreedte
30 m
Garages
4
Slaapkamers
3
Badkamers
3
Oppervlakte terras
80 m²
Dubbele beglazing
Ja
Schrijnwerk
aluminium
Bouwjaar
1975
Kadastraal inkomen (€)
1603
Kadaster sectie
B
Beschikbaarheid
vanaf akte
EPC
210 kW/m²
EPC code
20250626-0003633019-RES-1

VLAAMSE CODEX R.O.

Stedenbouwkundige bestemming
woongebied
Stedenbouwkundige vergunning
Vergunning uitgereikt
Dagvaarding en herstelvordering
Geen rechterlijke herstelmaatregel of bestuurlijke maatregel opgelegd
Voorkooprecht
Geen voorkooprecht ruimtelijke ordening aanwezig
Verkavelingsvergunning
Geen verkavelingsvergunning
Erfgoed
Nee
G-score
A
P-score
A
Bekijk de documenten Verberg documenten Bekijk meer
BERINGEN - Imposante woning met handelsruimte op +/-30a 1
resize
BERINGEN - Imposante woning met handelsruimte op +/-30a 2
resize
BERINGEN - Imposante woning met handelsruimte op +/-30a 3
resize
BERINGEN - Imposante woning met handelsruimte op +/-30a 4
resize
BERINGEN - Imposante woning met handelsruimte op +/-30a 5
resize
BERINGEN - Imposante woning met handelsruimte op +/-30a 6
resize
BERINGEN - Imposante woning met handelsruimte op +/-30a 7
resize
BERINGEN - Imposante woning met handelsruimte op +/-30a 8
resize
BERINGEN - Imposante woning met handelsruimte op +/-30a 9
resize
BERINGEN - Imposante woning met handelsruimte op +/-30a 10
resize
BERINGEN - Imposante woning met handelsruimte op +/-30a 11
resize
BERINGEN - Imposante woning met handelsruimte op +/-30a 12
resize
BERINGEN - Imposante woning met handelsruimte op +/-30a 13
resize
BERINGEN - Imposante woning met handelsruimte op +/-30a 14
resize
BERINGEN - Imposante woning met handelsruimte op +/-30a 15
resize
BERINGEN - Imposante woning met handelsruimte op +/-30a 16
resize
BERINGEN - Imposante woning met handelsruimte op +/-30a 17
resize
BERINGEN - Imposante woning met handelsruimte op +/-30a 18
resize
BERINGEN - Imposante woning met handelsruimte op +/-30a 19
resize
BERINGEN - Imposante woning met handelsruimte op +/-30a 20
resize
BERINGEN - Imposante woning met handelsruimte op +/-30a 21
resize
BERINGEN - Imposante woning met handelsruimte op +/-30a 22
resize
BERINGEN - Imposante woning met handelsruimte op +/-30a 23
resize
BERINGEN - Imposante woning met handelsruimte op +/-30a 24
resize
BERINGEN - Imposante woning met handelsruimte op +/-30a 25
resize
BERINGEN - Imposante woning met handelsruimte op +/-30a 26
resize
BERINGEN - Imposante woning met handelsruimte op +/-30a 27
resize
BERINGEN - Imposante woning met handelsruimte op +/-30a 28
resize
BERINGEN - Imposante woning met handelsruimte op +/-30a 29
resize
BERINGEN - Imposante woning met handelsruimte op +/-30a 30
resize
BERINGEN - Imposante woning met handelsruimte op +/-30a 31
resize

Plan een bezoek of vraag meer informatie

Contacteer uw makelaar

agent

Katrien De Vleeschauwer
bel mij kdv@horse-immo.be

Vergelijkbare panden

Hoeveel is mijn eigendom waard? arrow
fav-button